| 系统通用指标 |
| 控制方式 |
Soft-PWM控制/高载波频率PWM控制(可以选择V/F控制、先进磁通矢量控制、实时无传感器矢量控制)/最佳励磁控制/矢 量控制 *1 /PM无传感器矢量控制 |
| 输出频率范围 |
0.2~590HZ(先进磁通矢量控制、实时无传感器矢量控制、矢量控制*1、 PM无传感器矢量控制上限频率为400Hz) |
| 频率设定分辨率/模拟输入 |
0.015 Hz/60 Hz (端子2、4:0 - 10 V/12 bit) 0.03 Hz/60 Hz (端子2、4:0 - 5 V/11bit,0 - 20 mA/约11bit,端子1:0 - ±10 V/12bit) 0.06 Hz/60 Hz (端子1:0 - ±5 V/11bit) |
| 频率设定分辨率/数字输入 |
0.01 Hz |
| 频率精度/模拟输入 |
最大输出频率的±0.2%范围内 (25°C ± 10°C) |
| 频率精度/数字输入 |
设定输出频率的0.01%范围内 |
| 电压/频率特性 |
基准频率可以在0~590 Hz之间任意设定。可以选择恒转矩•低 |
| 启动转矩 |
SLD额定:120% 0.3 Hz;LD额定:150% 0.3 Hz;ND额定:200% 0.3 Hz *7;HD额定:250% 0.3 Hz (实时无传感 器矢量控制、矢量控制 *1时) |
| 转矩提升 |
手动转矩提升 |
| 加/减速时间设定 |
0~3600s(可分别设定加速和减速时间)可选择直线、S型加减速模式、齿隙措施加减速。 |
| 直流制动(感应电机) |
动作频率(0~120 Hz)、动作时间(0~10s)、动作电压(0~30%)可变 |
| 失速防止动作水平 |
动作电流水平可以设定、可选择有无该功能。SLD额定:0 - 120%;LD额定:0 - 150%; ND额定:0 - 220%;HD额定:0 - 280% (V/F控制、先进磁通矢量控制) |
| 转矩限制水平 |
可以设定转矩限制值(0 - 400%可变)(实时无传感器矢量控制、矢量控制、PM无传感器矢量控制) |
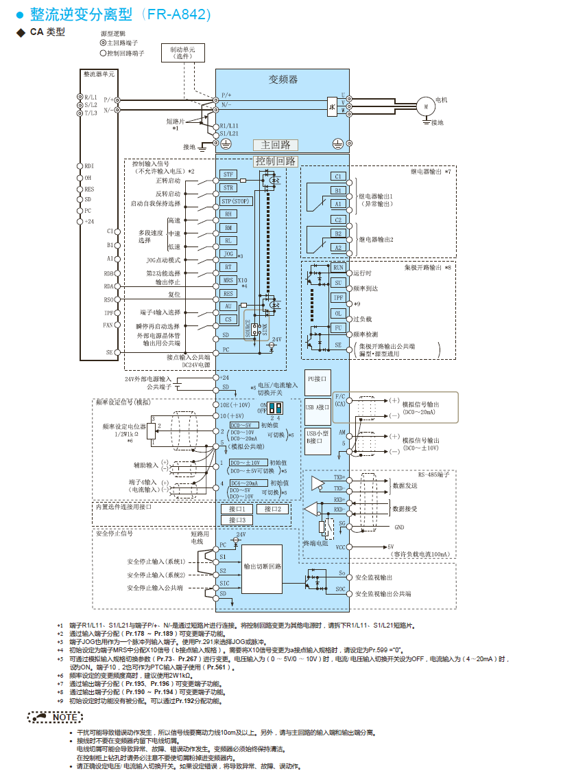
| 频率设定 信号/模拟输入 |
端子2、4:可以在0~10 V, 0~5 V, 4~20 mA (0~20 mA)间选择。 端子1:可在-10 - +10 V, -5 - +5 V间选择。 |
| 频率设定 信号/数字输入 |
通过操作面板的M旋钮或参数单元进行输入 BCD4位或16bit二进制(使用选配件FR-A8AX时) |
| 启动信号 |
正转、反转分别控制,启动信号自动自保持输入(3线输入)可以选择。 |
| 输入信号 (12点) |
低速运行指令,中速运行指令、高速运行指令、第2功能选择、端子4输入选择、Jog运行选择、瞬停再启动选择、高速启 动、停止输出、启动自保持选择、正转指令、反转指令、变频器复位可以用Pr.178~Pr.189(输入端子功能选择)选择任意 的信号。 |
| 运行功能 |
变频器运行中、频率到达、瞬时停电/电压不足、过载报警、输出频率检测、异常 变频器的报警代码可以通过开路集电极(4bit)进行输出。 可通过Pr.190~Pr.196 (输出端子功能选择)变更输出信号。 |
| 输出信号 集电极开路输出(5点) 继电器输出(2点) |
变频器运行中、频率到达、瞬时停电/电压不足、过载报警、输出频率检测、异常 变频器的报警代码可以通过开路集电极(4bit)进行输出。 可通过Pr.190~Pr.196 (输出端子功能选择)变更输出信号。 |
| 脉冲列输出 (FM类型) |
最大2.4 kHz:1点(输出频率) 可通过Pr.54 FM/CA端子功能选择变更监视。 |
| 电流输出 (CA类型) |
最大DC20 mA:1点(输出电流) 可通过Pr.54 FM/CA端子功能选择来变更监视。 |
| 电压输出 |
最大DC10 V:1点(输出电压) 可通过Pr.158 AM端子功能选择(电压输出)来变更监视。 |
| 运行状态 |
输出频率、输出电流、输出电压、频率设定值 可通过Pr.52操作面板主显示器选择变更监视 |
| 异常内容 |
保护功能启动时显示异常内容,存储8次的异常内容与保护功能动作之前的输出电压、电流、频率、累计通电时间、 年、月、日、时刻。 |
| 保护功能 |
加速时过电流跳闸、恒速时过电流跳闸、减速/停止时过电流跳闸、加速时再生过电压跳闸、恒速时再生过电压跳闸、减 速/停止时再生过电压跳闸、变频器过载跳闸(过电流)、电机过负载跳闸(电子过热保护)、散热片过热、瞬时停电、 欠足电压、输入缺相*5、外部热继电器动作*5、PTC热敏电阻动作*5选件异常、通讯选件异常、参数存储设备异常、PU 脱离、再试次数溢出*5、CPU错误、操作面板电源短路 |
| 报警功能 |
-10°C ~ +50°C(不结冰)(LD、ND、HD额定时) -10°C ~ +40°C(不结冰)(SLD额定时、IP55防护等级) |
| 周围温度 |
风扇故障、失速防止(过电流)、失速防止(过电压)、再生制动预报警*5、电子过电流保护预报警、PU停止、速度限 制显示*5、参数复制、安全停止中、维护定时1~3*4、USB主机异常、原点复位参数设定报警*5、原点复位未完成中*5 、原点复位参数设定错误*5、操作面板锁定*5、密码锁定中*5、参数写入错误、拷贝操作错误、24V外接电源操作中、 内部风扇故障*8 |
| 周围空气湿度 |
95% RH及以下(无凝露)(基板涂层、IP55机型) 90% RH及以下(无凝露)(无基板涂层) |
| 储存温度 |
-20°C - +65°C |
| 周围环境 |
室内(无腐蚀性气体、可燃性气体,油雾,粉尘及灰垢等) |
| 海拔高度/振动 |
海拔1000海拔高度/振动 米及以下 *3,5.9 m/s2 *4 及以下,10 - 55 Hz(X、Y、Z轴方向) |